Любоград, Золотая рыбка
Расположение / метро
Проспект Ветеранов
Автово
Петродворцовый р-н, Санкт-Петербургское шоссе / пр. Будённого
Срок сдачи
IV кв. 2027 — 5 очередь «Золотая рыбка»
Особенности
Жилье комфорт-класса
Класс энергоэффективности А - очень высокий
Зеленый район
Почему «Золотая Рыбка»?
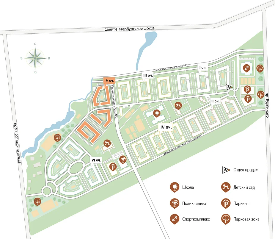
«Золотая рыбка» — пятая очередь жилого комплекса «Любоград», воплощающая идею гармоничного и современного городского пространства. Это квартал из четырёх уютных корпусов высотой всего 4 этажа, спроектированных с вниманием к деталям и человеку.
Здесь — уникальные планировки с французскими балконами, террасами, мастер-спальнями, гардеробными и трёхметровыми потолками на последнем этаже. Архитектура вдохновлена классикой, но подана в современном прочтении: выразительные фасады, ритмика форм, сочетание светлых и тёмных акцентов — всё это создаёт живой, эстетичный и цельный образ.
«Золотая рыбка» — часть большого и продуманного проекта: в «Любограде» уже работает детский сад на 260 мест, также будут простроены школа с бассейном на 875 учеников и ещё один детский сад, рассчитанный на 185 малышей. А в III квартале 2026 года будет сдана поликлиника площадью более 3 тыс. м2.

Если кратко
78 %
семейных квартир4
жилых дома642
квартиры63
кладовыхИдеология
Сказочный простор
На последних этажах "Золотой рыбки" вас ждёт настоящее волшебство — квартиры с потолками 3 метра. Больше света, воздуха и простора для фантазий домочадцев.

Чудо-отделка
Очередь славится новой чистовой отделкой: белые обои под покраску, матовые натяжные потолки, а ещё тропический душ и тёплые полы в ванной комнате. На полу лоджий — керамогранит.

Детское приволье
В «Золотой рыбке» появится ещё один теремок для малышей — новый детский сад на 185 мест. Просторные группы, добрые воспитатели, игры во дворе и сон после сказки. Садик будет построен во II квартале 2027 года.

Любоздравье
В 2026 году в «Любограде» откроется поликлиника — светлая, современная, своя! Здесь смогут принимать до 420 пациентов в смену. Внутри — кабинет неотложной помощи, терапевтическое, хирургическое отделения и другие службы.

Сказка под окном
Во дворе — радостно, зелено и красиво. Без машин, с цветами, качелями и уголками для отдыха. Для детей — разнообразные игры, для взрослых — спокойствие.

Семейное счастье
В «Золотой рыбке» много просторных квартир — с удобными, по-настоящему семейными планировками. Светлые комнаты, просторные кухни-гостиные, есть даже четырёхкомнатные решения. Места хватит всем — и большим, и маленьким.

Квартиры с чистовой отделкой
Это отличный вариант для тех, кто хочет переехать в новое жилье сразу после получения ключей. Не нужно тратить время на выравнивание стен и полов, работу с отделочными материалами, обустройство розеток и счетчиков. Эти задачи возьмут на себя специалисты компании. Вам останется только подобрать и расставить мебель по вкусу, развесить светильники и шторы, обыграть пространство аксессуарами. Переезжайте и живите!
Что включено в отделку?
Коммуникации
Выполнена электроразводка, установлены приборы отопления, розетки и выключатели, а также счётчики воды, электричества и расходов на отопление.
Ванная комната
Керамогранитная плитка на стенах и полу в санузлах. Комплекты сантехники и мебели.
Комнаты и общие зоны
Стены оклеены обоями под покраску. Постелен ламинат в комнатах, коридоре и кухне. Во всех помещениях (кроме лоджий и балконов) устанавливаются матовые натяжные потолки. Уложен крупноформатный керамогранит на полу лоджий.
Какие материалы используем?
Антивандальные обои под покраску на флизелиновой основе.
Уложен крупноформатный керамогранит.
Натяжные потолки ПВХ.
Межкомнатные двери — деревянные.
Входные двери — металлические.
Дизайн-проект холлов и парадных
Парадные «Золотой рыбки» встречают мягким светом, благородной палитрой и тёплыми фактурами. В интерьере сочетаются светлый камень, текстура натурального дерева и золотые акценты. Всё это создаёт ощущение спокойствия и уюта — как будто вошёл не в подъезд, а в красивую старинную сказку.
Орнаменты с изображением Золотой рыбки украшают стены, а колясочные и удобные почтовые зоны подчеркивают заботу о повседневном.
Ландшафтный дизайн
Три уютных двора «Золотой рыбки» создают не просто ландшафт, а полноценное продолжение домашнего уюта на свежем воздухе. Благодаря грамотной организации пространства и продуманному озеленению, каждый двор ощущается как тихий, безопасный оазис — закрытый от машин и посторонних.
Зоны отдыха и активности предусмотрены для всех возрастов. Для малышей — яркие и безопасные игровые площадки с мягким противоударным покрытием. Конструкции выполнены из натуральных материалов в эко-стилистике, с тёплыми древесными оттенками, тактильно приятные и визуально гармоничные. Для детей постарше — более динамичные элементы: горки, верёвочные комплексы и качели.
А для взрослых предусмотрены как спокойные зоны отдыха — скамейки, качели, тенистые уголки для чтения или общения, — так и пространство для активного досуга. В одном из дворов размещена современная воркаут-зона с тренажёрами и комплексом для функциональных тренировок на свежем воздухе.
Ландшафтный дизайн поддерживает ощущение гармонии с природой. Пространства наполнены многообразием растений: хвойные и лиственные деревья, декоративные кустарники и многолетние цветущие травы. Низкие живые изгороди, клумбы с сезонными акцентами, ароматные сирени и аккуратные газоны придают двору эстетичный облик в любое время года.
Инфраструктура района
В распоряжении жителей «Любограда» будет развитая инфраструктура Красносельского и Петродворцового районов. Рядом с жилым комплексом есть несколько детских садов и школ: общеобразовательные, спортивная, художественная. Также в районе работают многочисленные сетевые продуктовые магазины, кафе, аптеки, фитнес-центры. Напротив жилого комплекса расположены гипермаркеты «Лента» и «Лемана ПРО». В 7 минутах ходьбы — медицинский центр и стоматология, ресторан с блюдами русской и европейской кухни. За 10 минут можно доехать до Ледовой аренды и спортивного комплекса «Атлантика» с бассейном, фитнес-центром и детским центром обучения плаванию. В 15 минутах езды — ТРЦ «Жемчужная плаза» с ресторанами, магазинами и кинотеатром. Всего за 30 минут можно добраться до центра города без пробок на электричке от железнодорожной станции Сергиево.
Как добраться от метро
Техническая информация
Подобрать квартиру или помещение в Любоград
Подобрать квартиру или помещение в ЖК "Любоград" вы можете по телефону. Звоните 8 812 210 2318 или оставляйте заявку на звонок. Специалисты "КВС" ответят на ваши вопросы.